您的位置: 网站首页 > 东坡新闻 > 公告公示 > 正文

眉山市东坡区规划和自然资源局关于眉山市科技先导城建设项目调整方案的批后公布

责任编辑:东坡区自然资源和规划  文章来源:东坡区规划和自然资源局   发布日期:2025-11-05  点击:

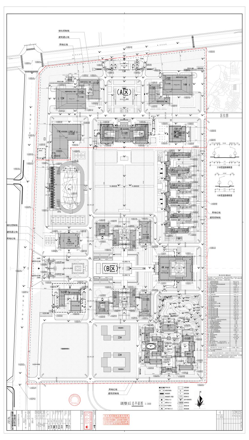
眉山市科技先导城建设项目调整方案已依法定程序审批。为保证规划的公开、透明,根据有关规定,现对该规划设计方案进行批后公布。

:关于眉山市科技先导城建设项目调整方案总平图

 

上一条:诊所撤销备案公告 下一条:眉山市东坡区农业农村局关于眉山市东坡区2025年省级财政农业高质量发展共同财政事权转移支付资金项目化肥农药固定监测点的公示

关闭

蜀ICP备12002995号川公网安备 51140202000234号 网站标识码:5114020004 

主办单位:中共眉山市东坡区委办公室眉山市东坡区人民政府办公室