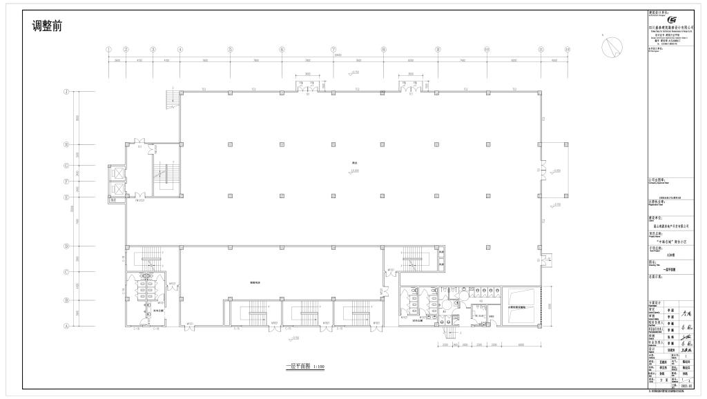
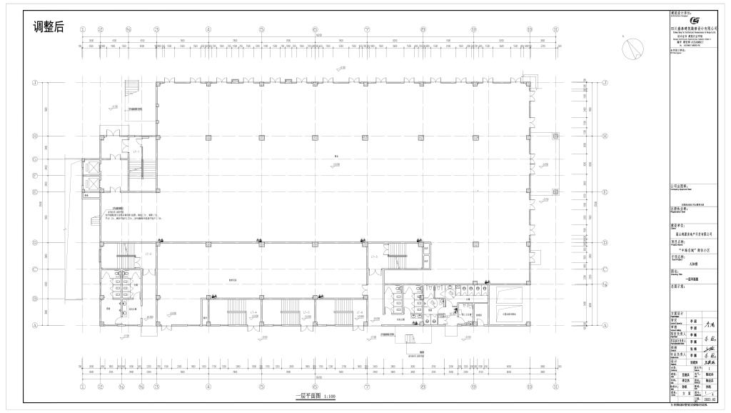
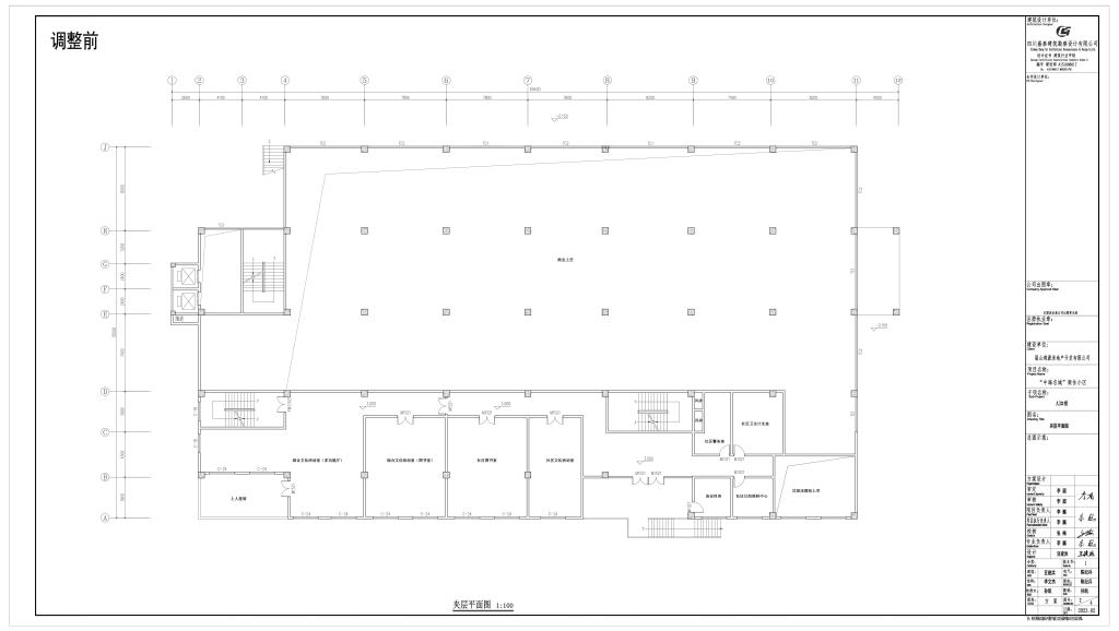
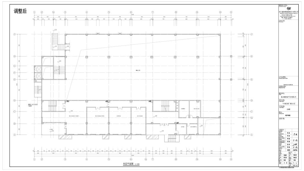
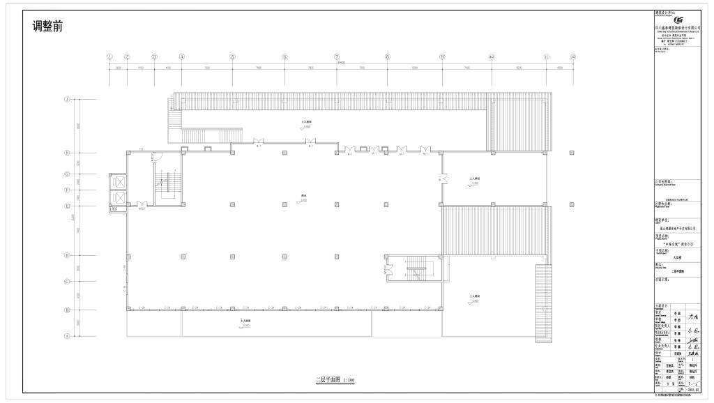
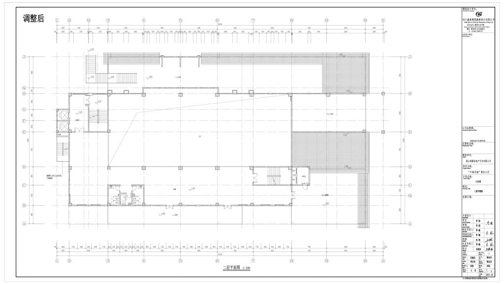
该项目位于东坡湖南片区。眉山鸿源房地产开发有限公司为适应市场需求,拟对原批准规划设计方案中A3#商业楼进行调整。本次调整取消了A3#楼二层局部楼板,使一层和二层局部通高,调整后商业建筑面积减小约615平方米,其余内容与原方案保持一致。
为保证规划的公开、公正、透明,强化公众参与,现对项目规划设计方案进行批前公示,公示期自2023年4月14日至2023年4月23日,共7个工作日。
公示期内,如有意见和建议,请以书面形式向眉山市东坡区规划和自然资源局反映(须注明姓名、身份证号、工作单位、联系电话等)。逾期未提出的,视为无意见。公示期满,将根据公示情况依法按程序审批。
意见受理:眉山市东坡区规划和自然资源局
联系电话:028-38229531






