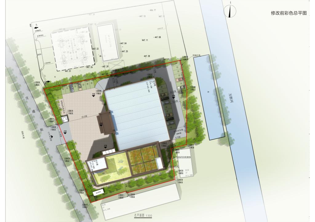
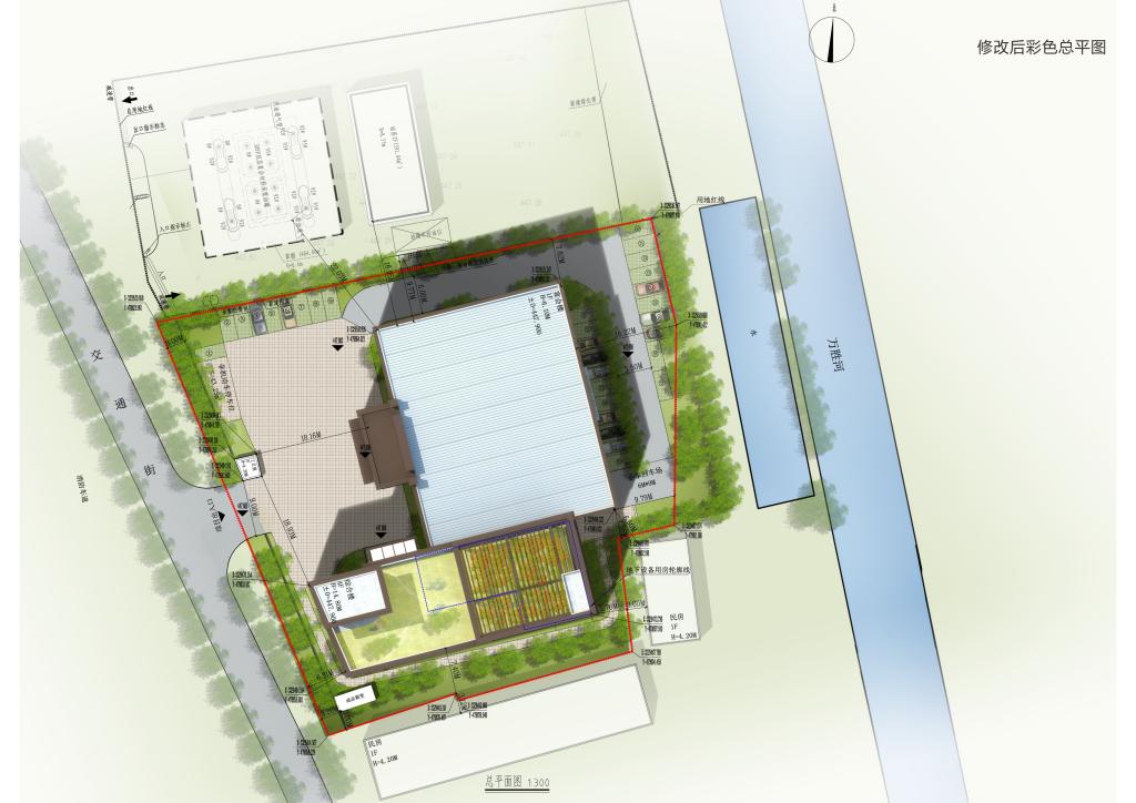
该项目位于眉山市东坡区万胜镇,用地面积4608.23㎡。调整内容:将门卫室向南侧移5.8米,调整后各项经济技术指标不变。
为保证规划的公开、公正、透明,强化公众参与,现对项目调整方案进行批前公示,公示期自2021年12月2日至2021年12月10日,共7个工作日。
公示期内,如有意见和建议,请以书面形式向眉山市东坡区自然资源和规划局反映(须注明姓名、身份证号、工作单位、联系电话等)。逾期未提出的,视为无意见。公示期满,将根据公示情况依法进行审批。
意见受理:眉山市东坡区自然资源和规划局
联系电话:028-38229531




