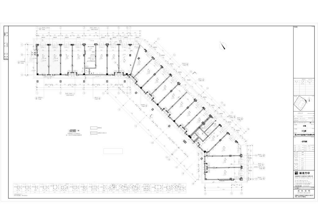
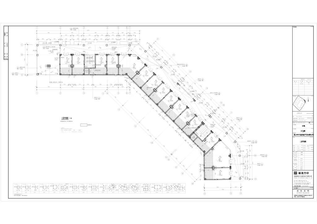
该项目位于眉山市东坡区东坡湖片区,苏湖路以南,二环东路以西。为满足返迁商铺功能布局合理化和消防规范的要求,对商业46号楼和47号楼及地下室的平面布局进行调整。调整后计容建筑面积、地下停车位数量及建筑风貌均不发生变化,A1-2地块地下室建筑面积由65764.62㎡调整为63838.25㎡。为保证规划的公开、公正、透明,现在项目建设所在地对该方案进行审批前公示,公示期自2020年5月9日至2020年5月18日。
广大群众如有意见,请在公示期内以实名(附联系电话)向我局反映。如无反对意见,我局将按规定程序审批。
意见受理:眉山市东坡区自然资源和规划局
联系电话:028-38229531

A1-2地块地下室调整后平面图

46号楼调整后平面图


47号楼调整后平面图