您的位置: 网站首页 > 专题专栏 > 正文

眉山市东坡区自然资源和规划局年产160万方商品混凝土工程项目规划设计方案批前公示

责任编辑:东坡区自然资源和规划局  文章来源:东坡区自然资源和规划局   发布日期:2019-12-10  点击:

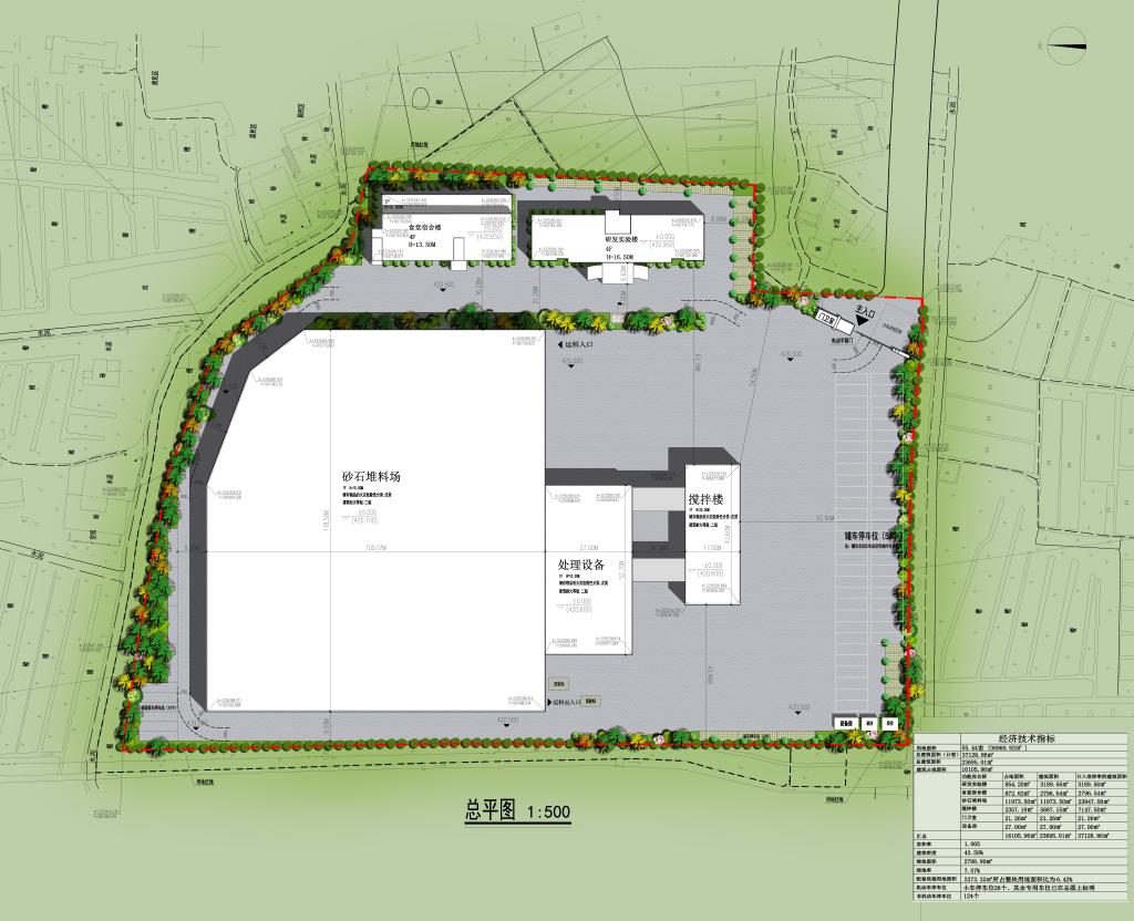
该项目位于眉山市东坡区太和镇仙桥村三组,用地面积36960.92㎡,总建筑面积23695.01㎡,计容建筑面积37128.86㎡,已经东坡区规委会审议通过。为保证规划的公开、公正、透明,现对项目规划设计方案进行审批前公示,公示期自2019年12月10日至2019年12月18日。

广大群众如有意见,请在公示期内以实名(附联系电话)向我局反映。如无反对意见,我局将按规定程序审批。

意见受理:眉山市东坡区自然资源和规划局

联系电话:028-38229531

 

上一条:医疗机构执业登记公示(兴德胜口腔诊所) 下一条:眉山市东坡区卫生健康局2019年12月2日—12月6日行政许可办件量统计表

关闭

蜀ICP备12002995号川公网安备 51140202000234号 网站标识码:5114020004 

主办单位:中共眉山市东坡区委办公室眉山市东坡区人民政府办公室